Acondicionamiento de local para pensión turística de dos estrellas
Ubicación: Praza Doctor Paz nº 4, A Pobra de Trives, Ourense
Equipo de proyecto: Luis Álvarez, Silvia Arias y Rosario León
Constructor: Construcciones Pali y Lorenzo Álvarez
Año: proyecto 2024, finalizado en 2024
Web: Pensión do Catro, Turismo Ribeira Sacra
Más información
Promotor: A Cantina do Catro
Ingeniero industrial: José Antonio Rodríguez
Fontanería: Carlos Pérez,
Electricidad: Avelino Pérez.
Carpintería: Carpintería Miguel
Herrero: Hierros Ventura
Pintura: Koldo Terol
Materiales de construcción: Emagrés
Subvención: LEADER Grupo de desenrrolo rural GDR Sil Bibei Naveal GDR
Descripción del proyecto
Descrición do proxecto en galego
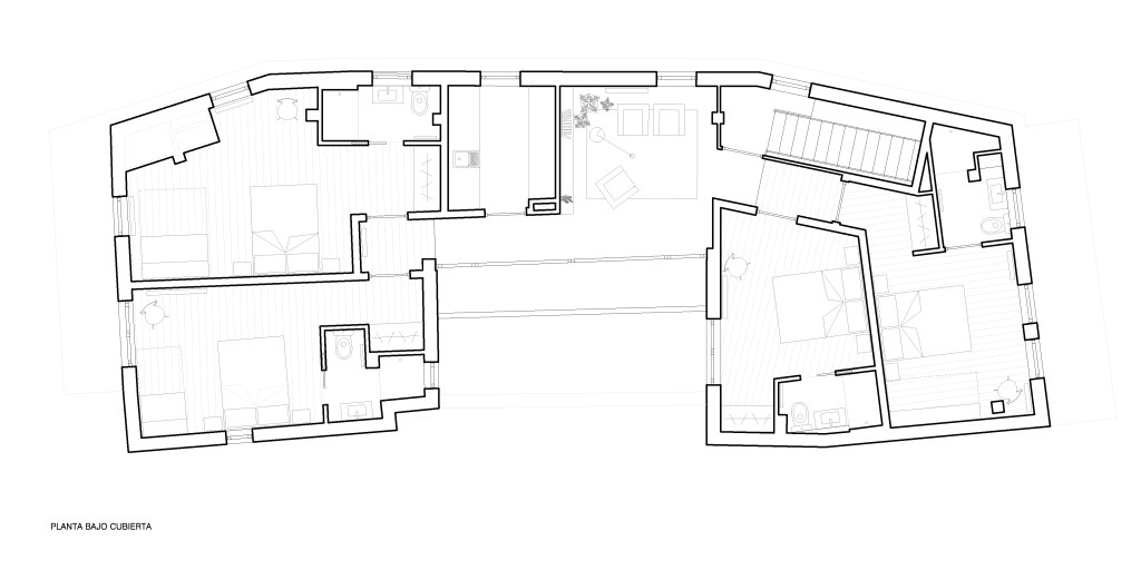
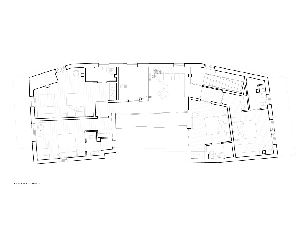
O proxecto emprázase no casco antigo da Pobra de Trives, Ribeira Sacra, Ourense. Parte dun espazo baixo cuberta sen acondicionar para convertelo nun aloxamento turístico de tipo pensión de dúas estrelas, nun edificio que alberga un restaurante en planta baixa e unha vivenda en planta primeira.
A pensión conta con catro habitacións organizadas ao redor dunha zona común que recibe aos hóspedes, aproveitando a luz natural do patio interior.
Os cuartos de baño sitúanse en zonas con piares para absorbelos, deixando así un espazo máis flexible nos dormitorios. Amplíase a caixa de escaleiras, e sectorízase adecuadamente do resto de usos.
Trabállase a imaxe interior espindo a fábrica de pedra orixinal e elementos da estrutura de formigón que contrastan cos materiais seleccionados para chans e paredes, apostando pola presenza de madeira vista para dar maior calidez, coidando a iluminación. A zona común conta con mobiliario que fomente o encontro entre os hóspedes, complementando o carácter privado das habitacións.
Dado que no edificio só existían dúas baixantes para o saneamento, elevouse o chan das habitacións cunha soleira tipo caviti para conectar os catro baños. Recolócase a posición das xanelas para mellorar a iluminación ou as vistas, aproveitando as carpinterías existentes. As divisións son autoportantes con placa de cartón xeso e illamento acústico interior para mellorar a insonorización entre espazos. Os teitos suspéndense xogando coas pendentes para personalizar cada habitación.

Descripción del proyecto en castellano
El proyecto se emplaza en el casco antiguo de A Pobra de Trives, Ribeira Sacra, Ourense. Parte de un espacio bajo cubierta sin acondicionar para convertirlo en un alojamiento turístico de tipo pensión de dos estrellas, en un edificio que alberga un restaurante en planta baja y una vivienda en planta primera.
La pensión cuenta con cuatro habitaciones organizadas en torno a una zona común que recibe a los huéspedes, aprovechando la luz natural del patio interior.
Los cuartos de baño se sitúan en zonas con pilares para absorberlos, dejando así un espacio más flexible en los dormitorios. Se amplía la caja de escaleras, sectorizándola adecuadamente del resto de usos.
Se trabaja la imagen interior desnudando la fábrica de piedra original y elementos de la estructura de hormigón que contrastan con los materiales seleccionados para suelos y paredes, apostando por la presencia de madera vista para dar mayor calidez cuidando la iluminación.La zona común cuenta con mobiliario que fomente el encuentro entre los huéspedes, complementando el carácter privado de las habitaciones.
Dado que en el edificio solo existían dos bajantes para saneamiento, se elevó el suelo de las habitaciones con una solera tipo caviti para conectar los cuatro baños. Se reubica la posición de las ventanas para mejorar la iluminación o las vistas, aprovechando las carpinterías existentes. Las divisiones son autoportantes con placa de cartón yeso y aislamiento acústico interior para mejorar la insonorización entre espacios. Los techos se suspenden jugando con las pendientes para personalizar cada habitación.

Antes vs después








Galería de proyecto





















Debe estar conectado para enviar un comentario.