Usados por todos nosotros a diario, por equipamiento se entiende todos los espacios y construcciones de uso público o privado que sostienen el desarrollo de actividades distintas a las residenciales, es decir, que no son vivienda.
Pueden ser de tipo turístico, social, institucional, educativo, deportivo, recreativo, administrativo, sanitario, religioso o financiero.
Para nosotros es importante poder participar en el diseño y construcción de los equipamientos de nuestro entorno, interesándonos por las necesidades que hay detrás de cada proyecto y dando una respuesta actual, duradera y que respete el contexto en el que se encuentra.
Pensión do Catro en Trives
A Pobra de Trives. Proyecto 2024. Construido en 2024.

Forno de Requeixo.
Chandrexa de Queixa. 2025

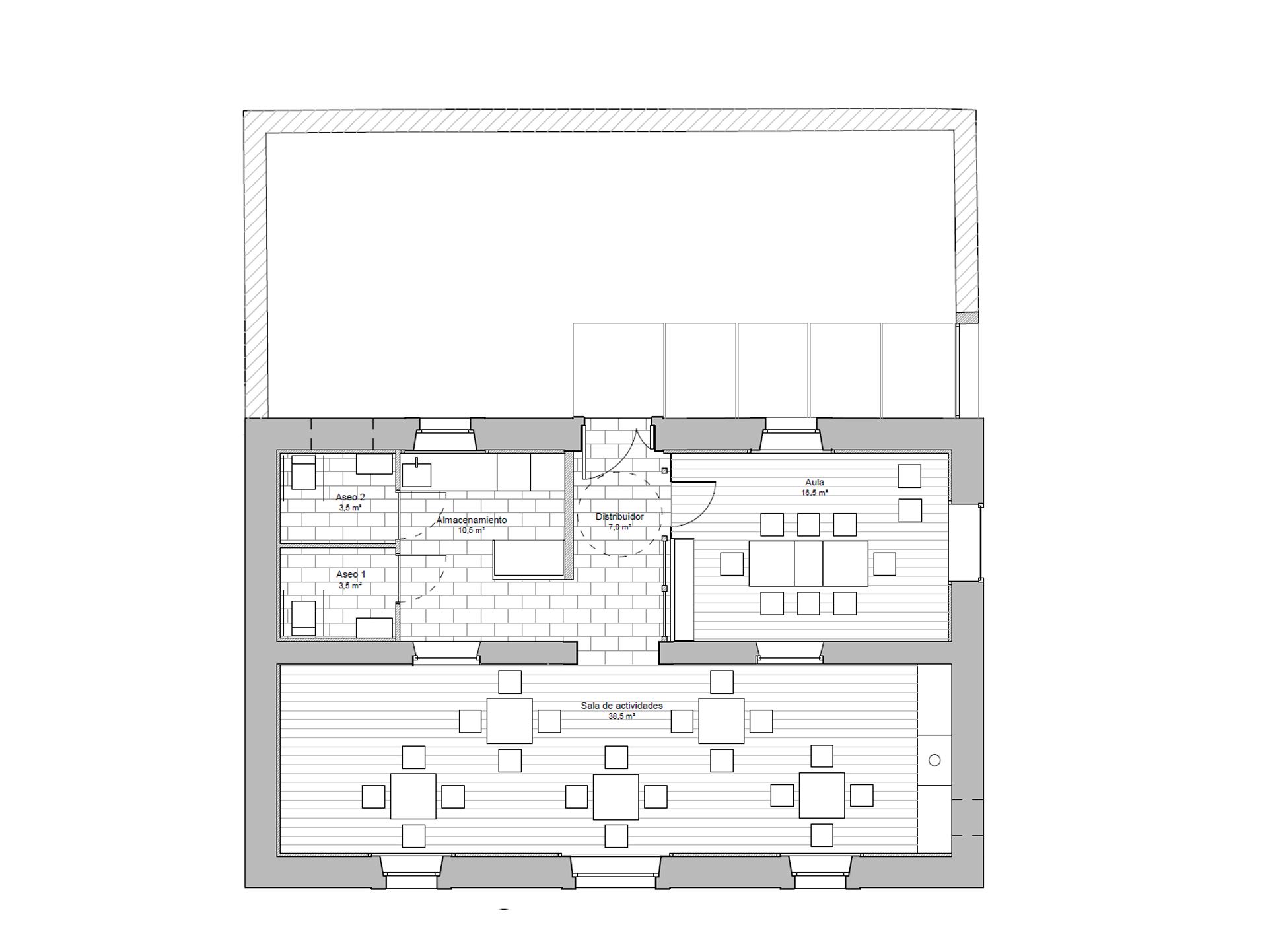
Albergue de Celeiros
Chandrexa de Queixa. Proyecto 2022. Construido en 2024.



Forno da Espasa
Chandrexa de Queixa. Proyecto 2022. Construido en 2023.

Consolidación estructural de la iglesia de San Marcos de Soutipedre. Manzaneda. 2024.

Acondicionamento de la iglesia de San Martiño de Casteligo. Chandrexa de Queixa. 2021

Albergue Eco dos Teixos en Casaio.
Carballeda de Valdeorras. Proyecto 2020. Rehabilitado en 2021.



Muiño de Requeixo
Chandrexa de Queixa. Proyecto 2018. Rehabilitado en 2019.



Centro sociocultural Casa de Camineros
O Barco de Valdeorras. Proyecto 2017. Construido en 2018.









Debe estar conectado para enviar un comentario.