Reforma de viviendas en el Poblado de Celeiros
Ubicación: Celeiros, Chandrexa de Queixa, Ourense
Equipo de proyecto: Luis Álvarez, Silvia Arias, Rosario León, Andrea García.
Constructor: Silclasa y Construcciones Jose Luis
Año: proyecto 2022, finalizado en 2023
Más información
Promotor: Concello de Chandrexa de Queixa
Instalaciones: Jose Antonio Rodríguez
Otros constructores:
Presupuesto:
Superficie:
Descripción del proyecto
Las viviendas se sitúan en el “Poblado de Celeiros” pieza de nuestro patrimonio industrial, construido por la empresa hidroeléctrica Saltos del Sil durante la década de los 50 del siglo XX, para los empleados que gestionaban el embalse de Chandrexa de Queixa.

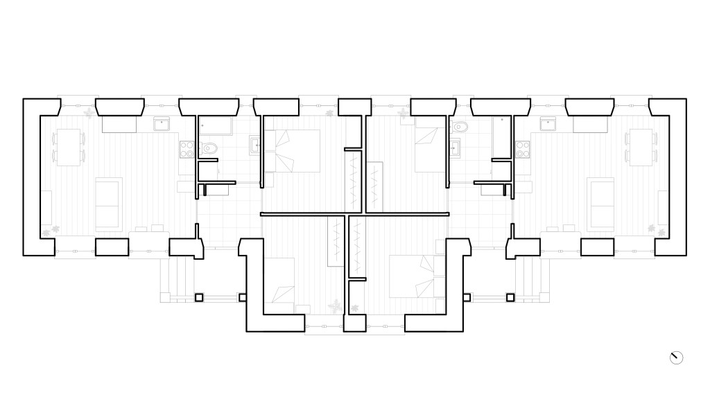
Se trata de dos viviendas pareadas con planta simétrica. La imagen exterior es homogénea en todo el Poblado. Tienen un diseño racional, pionero en la zona, que apuesta por la salubridad y la iluminación de su interior, adaptado a los materiales locales para su construcción. Usando muros de fábrica de granito, estructura de madera y cubierta de pizarra.

El proyecto conserva los elementos característicos de la construcción original, reparando las partes vistas de granito vistos, pintando los enfoscados y molduras y renovando las ventanas con contra del mismo color verde.
Se actualiza su distribución, unificando el salón y la cocina en una sola pieza, y reorganizando la posición de los armarios en las habitaciones para aumentar su capacidad.
Se renuevan los acabados interiores y el equipamiento de baños, cocina y dormitorios, buscando un interior más confortable. En el salón un banco y una mesa alta permiten apreciar la piedra con la que están construidos los muros y se restaura la puerta abriendo tres cuarterones con vidrio para dar claridad al recibidor. Para mejorar su eficiencia energética se instala caldera de biomasa y un sistema aerotermia para el agua caliente, renovando por completo la instalación eléctrica.

Antes vs después








Galería de proyecto
Agradecementos por las fotos antiguas facilitadas por Amadeo Domínguez.




















Debe estar conectado para enviar un comentario.